Projet de construction d'une maison 105 m² avec terrain à LEHON (22)

Maison 105m² 4 chambres
LEHON (22100)

275 120 €
7 Pièces4 Chambres105 Garage

Demandez votre étude gratuite.

Entrez en relation avec l’un(e) de nos chargé(e)s de projets pour définir votre projet personnalisé

Maisons Françaises Bretonnes,
constructeur de maisons à LEHON


A propos de cette offre

Le Prêt 0% est de retour en 2025 et finance une partie de votre projet SANS INTÉRÊT :
- Jusqu’à 30% de votre projet financé
- Paiement différé jusqu’à 10 ans pour alléger vos mensualités

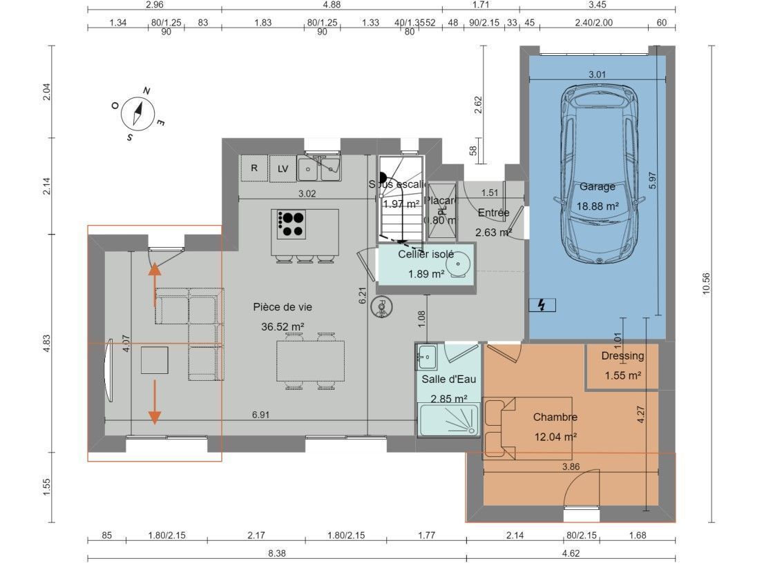
A LEHON sur un terrain de 344 m², Maisons Françaises Bretonnes vous propose de réaliser cette maison neuve d'une surface de 105 m² habitables avec 4 chambres.

Maisons Françaises Bretonnes vous propose les prestations suivantes :
- Plan sur-mesure et personnalisé de 2 à 5 chambres
- Mode de chauffage au choix
- Grands choix d'équipements et de prestations
- Matériaux de qualité selon les normes en vigueur
- Accompagnement dans le choix et l’acquisition du terrain
- Construction conforme à la nouvelle RE 2020


Demandez une étude gratuite et personnalisée de votre projet de construction !

Prix avec assurance dommages-ouvrage comprise, hors VRD, terrain viabilisé, frais de notaire non compris, frais divers non compris. Terrain proposé à la vente par le propriétaire du terrain ou un partenaire foncier dûment mandaté à cet effet selon disponibilités et autorisation de publicité et sélectionné par le mandataire du constructeur en vue de construire une maison neuve avec un contrat de construction de maison individuelle, dans le cadre de la loi du 10/12/1990. Le prix, la disponibilité et les conditions de vente du terrain sont fixés et laissés libres au propriétaire et vendeur du terrain. Le prix affiché s’entend hors frais de notaire et d’agence éventuels. Les photos et images sont non contractuelles.

  •   Modèle présenté : COMBLES AMENAGES
  •   Surface : 105 m²
  •   Pièces : 7
  •   Chambres : 4
  •   Nb salle de bains : 2
  •   Garage : 20 m2
  •   Commune : 22100 LEHON
  •   Surface terrain : 344 m²
  •   En lotissement : non
  •   Prix : 275 120  €



Demander votre étude gratuite personnalisée

* champ obligatoire


 

© 2025 | Maisons Françaises Bretonnes | Tous Droits Réservés - Mentions légales - Réalisation Vitaweb - Solutions web pour constructeur